Selveier
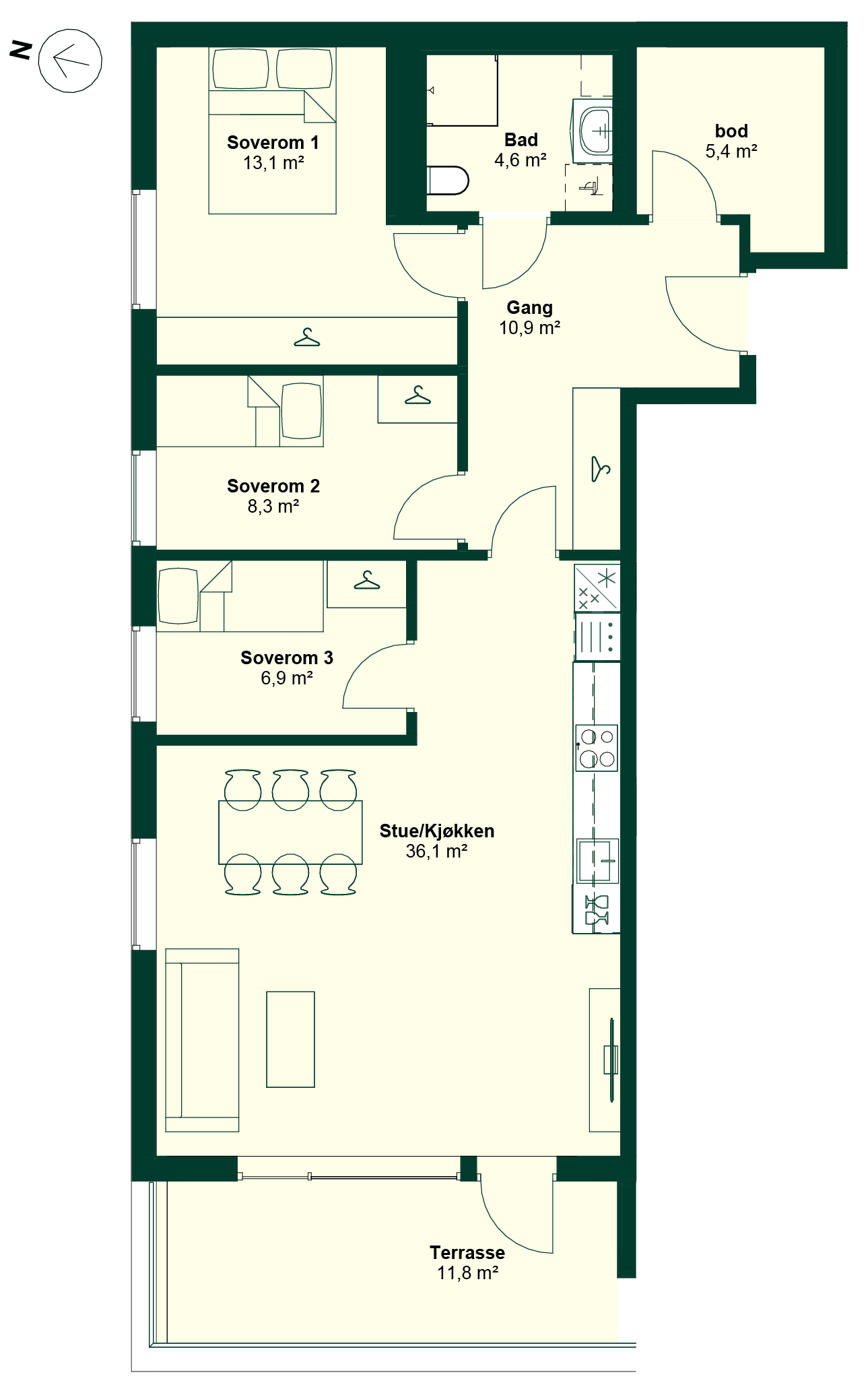
Bildene er kun ment som illustrasjon, avvik vil forekomme
Eiendomsmegler krh@eie.no +47 924 35 746
Eiendomsmegler shh@eie.no +47 915 58 863